أعلنت مصلحة الجمارك، والجهاز القومي لتنظيم الاتصالات في مصر انتهاء فترة الإعفاء الاستثنائي لأجهزة الهاتف المحمول الواردة من الخارج بصحبة راكب، اعتبارًا من...
رئيس مجلس الإدارة : د. خالد بن ثاني آل ثاني

رئيس التحرير: جابر سالم الحرمي

مساحة إعلانية
مساحة إعلانية
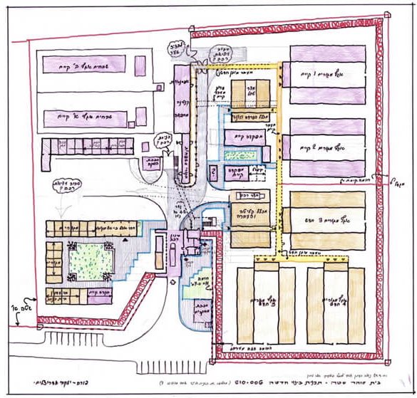
ذكرت صحيفة هآرتس العبرية أن الخريطة الهندسية لسجن جلبوع التابع للاحتلال الإسرائيلي والذي فر منه 6 أسرى فلسطينيين سبق وأن تم نشرها علنياً على شبكة الإنترنت.
وقالت الصحيفة أن الخريطة نشرها مكتب الهندسة الذي أشرف على تصاميم بناء السجن، مبينة أنها كانت متاحة لكل شخص أراد الاطلاع عليها، موضحة أنه لا يعرف في هذه المرحلة ما إذا كانت الخريطة قد ساعدت الأسرى على الهروب من السجن، وفقاً لروسيا اليوم نقلاً عن الصحيفة.
ونقلت الصحيفة عن مسؤول في مصلحة سجون الاحتلال قوله: "هذا خطأ أمني فادح من الدرجة الأولى".
وأكد أن نشر مخطط بناء سجن أمني هو فشل أمن معلومات لمصلحة السجون التي سمحت بحدوث ذلك.
كما كشفت الصحيفة معلومات جديدة عن السجانة التي كانت موجودة في برج الحراسة لحظة هروب الأسرى الفلسطينيين الستة من سجن "جلبوع".

وقالت الصحيفة إن "السجانة التي كانت أعلى فتحة النفق في نقطة الحراسة اعترفت بأنها كانت تشعر بالنعاس لحظة هروب الأسرى".
في المقابل، قالت وسائل إعلام إسرائيلية إن أوامر صدرت بحظر نشر المعلومات حول عملية هروب الأسرى الفلسطينيين الستة من سجن "جلبوع".

ويذكر أن ستة فلسطينيين هربوا من سجن الاحتلال الإسرائيلي شديد الحراسة، مما ترك سلطات السجن تحدق في الفتحة التي أحدثوها في أرضية الزنزانة، ودفع الفلسطينيين للاحتفال في الشوارع.
وذكر مكتب رئيس الوزراء الإسرائيلي نفتالي بينيت أنه تحدث إلى وزير الأمن الداخلي و"أكد على أن هذا حادث خطير يستلزم بذل قوات الأمن جهودا شاملة" للعثور على الفارين.
وأمر وزير دفاع جيش الاحتلال بيني غانتس الجيش بتعزيز تواجده على المعابر الحدودية ونقاط التماس، لمنع هروب الأسرى الفلسطينيين الذين تمكنوا من الفرار من سجن جلبوع الإسرائيلي يوم الإثنين الماضي.
واستدعى جيش الاحتلال أعداداً كبيرة من قوات الشرطة إلى المنطقة والاستعانة بطائرات مسيرة ومروحيات، للبحث عن الفارين.
دعم أمريكي بريطاني كندي لقدرات الجيش اللبناني
تتواصل المساعي السياسية لتعزيز قدرات الجيش اللبناني ليتمكن من بسط سلطة الدولة على كامل الأراضي اللبنانية، حيث تحدثت... اقرأ المزيد
40
| 22 يناير 2026
استشهاد 3 صحفيين في قصف مركبة وسط غزة
استشهد 3 صحفيين فلسطينيين، في قصف إسرائيلي استهدف مركبتهم وسط قطاع غزة. وأفادت مصادر فلسطينية بأن الصحفيين محمد... اقرأ المزيد
64
| 22 يناير 2026
إعادة تشغيل أكبر محطة نووية في العالم
أعيد الأربعاء تشغيل محطة كاشيوازاكي-كاريوا اليابانية النووية، الأكبر من نوعها في العالم، بحسب ما أعلن مشغّلها، وذلك للمرة... اقرأ المزيد
228
| 22 يناير 2026
مساحة إعلانية
مساحة إعلانية
أعلنت مصلحة الجمارك، والجهاز القومي لتنظيم الاتصالات في مصر انتهاء فترة الإعفاء الاستثنائي لأجهزة الهاتف المحمول الواردة من الخارج بصحبة راكب، اعتبارًا من...
8044
| 20 يناير 2026
وفرت وزارة التربية والتعليم والتعليم العالي، خدمة التقديم على المقاعد الدراسية بالمدارس الخاصة ورياض الاطفال (مجانية - مخفضة- بقيمة القسيمة التعليمية) . وتشمل...
6206
| 20 يناير 2026
انتقل إلى رحمة الله تعالى الإعلامي والروائي ورئيس تحرير الشرق الأسبق الدكتور أحمد عبدالملك الحمادي، عن عمر ناهز 75 عاماً. ويُعد الفقيد الدكتور...
4340
| 19 يناير 2026
سادت حالة من الحزن في الأوساط الرياضية المغربية والإفريقية عقب وفاة الشاب المغربي سفيان المعروفي (30 عامًا) والذي كات متطوعا في تنظيم البطولة،...
4254
| 20 يناير 2026
مساحة إعلانية
مساحة إعلانية
شاركت دولة قطر في الاجتماع (11) لأصحاب السعادة وكلاء وزارات المالية في الدول العربية، الذي ينظمه صندوق النقد العربي على مدى يومين في...
64
| 22 يناير 2026
زادت مكاسب مؤشر بورصة قطر في مستهل تعاملات اليوم بنسبة 0.41 في المئة، ليضيف إلى رصيده 46.55 نقطة، ويصعد إلى مستوى 11263 نقطة،...
34
| 22 يناير 2026
شارك سعادة السيّد سعد بن علي الخرجي، رئيس قطر للسياحة ورئيس مجلس إدارة Visit Qatar، في الاجتماع السنوي للمنتدى الاقتصادي العالمي 2026 في...
96
| 22 يناير 2026
- عبدالرحمن السويدي: عقد الشراكات لتحفيز التنمية الاقتصادية أعلن بنك قطر للتنمية عن استضافة «المؤتمر العالمي لريادة الأعمال - الدوحة 2026» في دولة...
62
| 22 يناير 2026
مساحة إعلانية
تابع الأخبار المحلية والعالمية من خلال تطبيقات الجوال المتاحة على متجر جوجل ومتجر آبل



أعلنت اللجنة المحلية المنظمة لأحداث كرة القدم عن مهرجان قطر لكرة القدم 2026 الذي سيعقد خلال الفترة من 26 إلى 31 مارس. وسيضم...
3560
| 19 يناير 2026
أعلنت وزارة الداخلية عن فتح باب التجنيد للقطريين، موضحة الشروط والمستندات المطلوبة لضمان استيفاء المتقدمين للمعايير اللازمة. وأوضحت الوزارة أن الشروط المطلوبة للتجنيد...
2986
| 21 يناير 2026
ترأس سعادة الشيخ سعود بن عبد الرحمن بن حسن آل ثاني، نائب رئيس مجلس الوزراء ووزير الدولة لشؤون الدفاع، الاجتماع العادي الذي عقده...
2914
| 21 يناير 2026